Lägenhet i göteborg
1 rum och kokskåp 21 kvm
Modern och välplanerad etta på populära Skäpplandsgatan.
Lägenheten renoverades 2025 och erbjuder ett modernt boende med bra förvaring och fint ljusinsläpp från den franska balkongen. Lägenheten är utrustad med ett kokskåp, ett praktiskt val för dig som vill ha en lättskött bostad eller en bekväm övernattningslägenhet.
Området bjuder på närhet till både grönområden och stadsliv, med utmärkta kommunikationer vid Marklandsgatan.
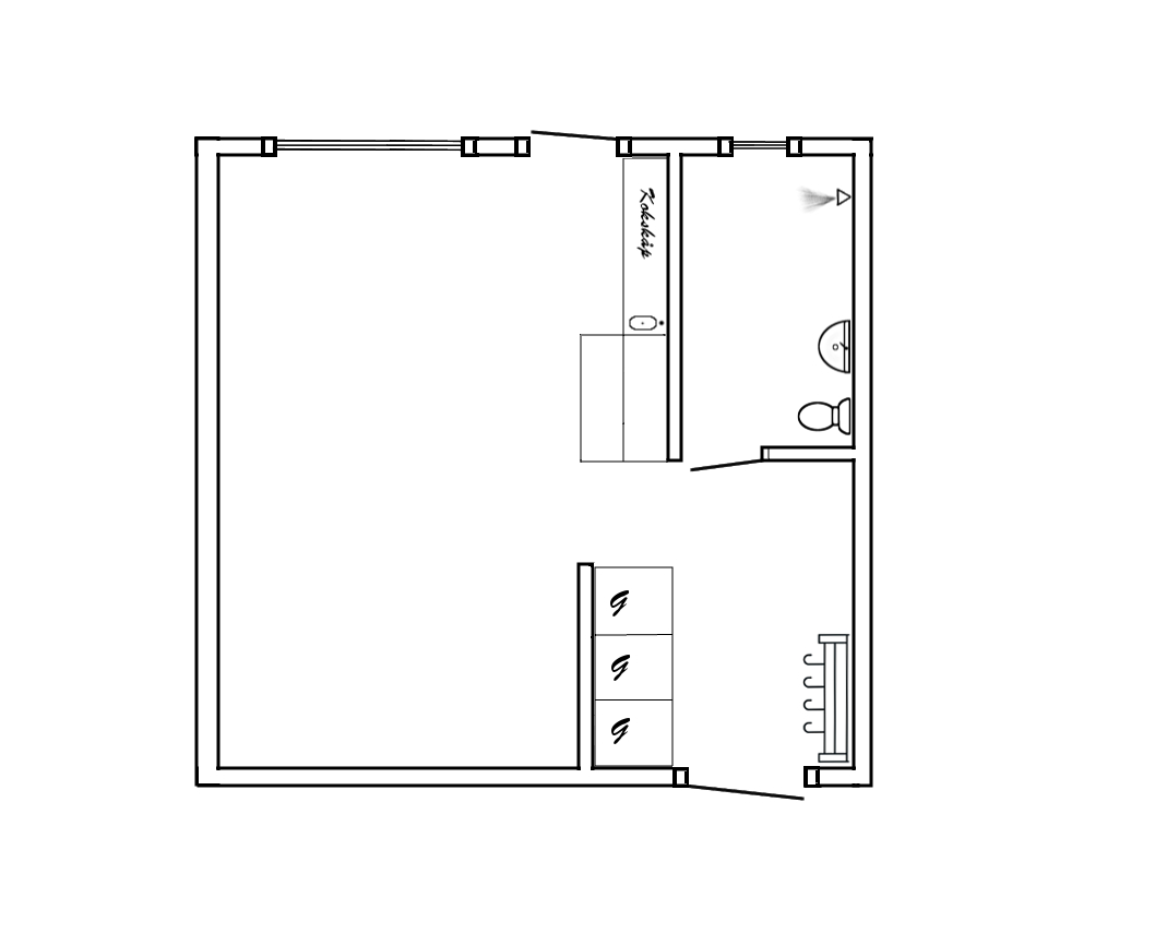
- Fler detaljer samt bilder & planlösning finns längre ned på sidan.
Mer information
Välkommen till denna trivsamma etta på populära Skäpplandsgatan i Högsbo!
Lägenheten totalrenoverades 2025 och bjuder på ett modernt och fräscht intryck. Här möts du av ett smart planerat boende med gott om förvaring tack vare de rymliga garderoberna i hallen och den franska balkongen släpper in generöst med dagsljus. Det helkaklade badrummet är försett med klinkergolv och dusch. Lägenheten är utrustad med ett praktiskt kokskåp som rymmer kyl, frysfack och kokplatta – perfekt för dig som söker en smidig och lättskött bostad eller övernattningslägenhet.
Skäpplandsgatan ger en fin balans mellan grönska och cityliv.
En kort promenad bort finns Axel Dahlströms torg med matbutik, apotek, och restauranger, samtidigt som Slottsskogen, Botaniska trädgården och Änggårdsbergen snabbt nås för den som vill ut i grönskan. Vid knutpunkten Marklandsgatan finns mycket goda kommunikationer med kollektivtrafiken samt smidiga cykelvägar som snabbt tar dig in mot city.
Se fler lediga lägenheter
031-704 17 00
Hyra
4 339,-/månad
Rum
1 rum och kokskåp
Storlek
21 kvm
Värme
Ingår i hyran
Vatten
Ingår i hyran
Tillträde
Enligt överenskommelse
Bilder
Intresseanmälan
Vi har digitaliserat hur vi samlar in intresseanmälningar för lägenheter till uthyrning. Numera kan du som bostadssökande enkelt och smidigt fylla i ett formulär här på vår hemsida och skicka in till oss. Strax därefter får du en bekräftelse till den e-postadress du angivit där du kan se din ansökan.
Vid funderingar är du varmt välkommen att kontakta oss.
För mer information
Vid frågor är du varmt välkommen att kontakta oss.
Receptionen
031-704 17 00
Lediga lokaler
Söker du efter en lokal?
Lediga lägenheter
Söker du efter en bostad?
För hyresgäster
Information för dig som hyresgäst.






